Romulus Close
In Progress
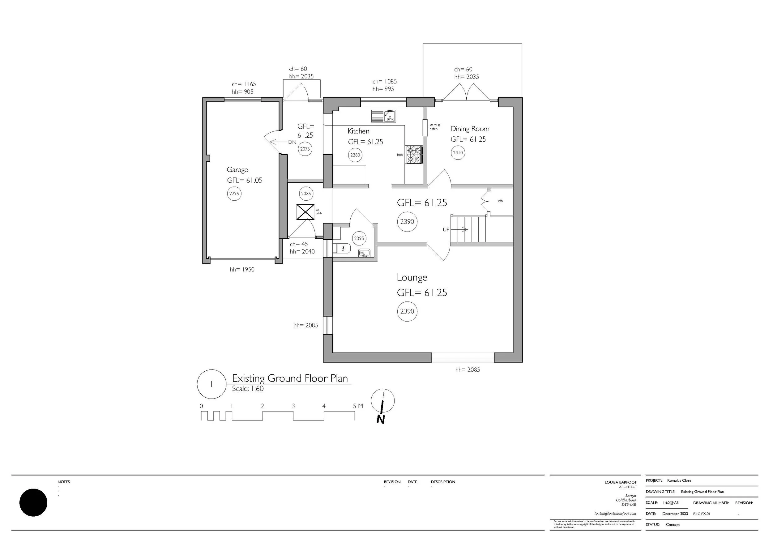
An Eco Retrofit of a 1970s detached home. The client was looking to create a home that can accommodate their changing needs post retirement. The project has involved the design of a new two storey extension to the rear as well as a reconfigure of the internal layout to the existing house. Triple glazed windows, MVHR and ASHP are being installed as well as improving the insulation to the exiting cavity walls.
In progress
Concept Design
Existing Plan
Proposed Plan